Estado de promoción
Actualizado 16/11/2025
En el municipio de Gor, al abrigo de la Sierra de Baza y con vistas al valle que conecta con Guadix, nace una de las promociones más singulares de toda la comarca: Cumbres de la Vega.
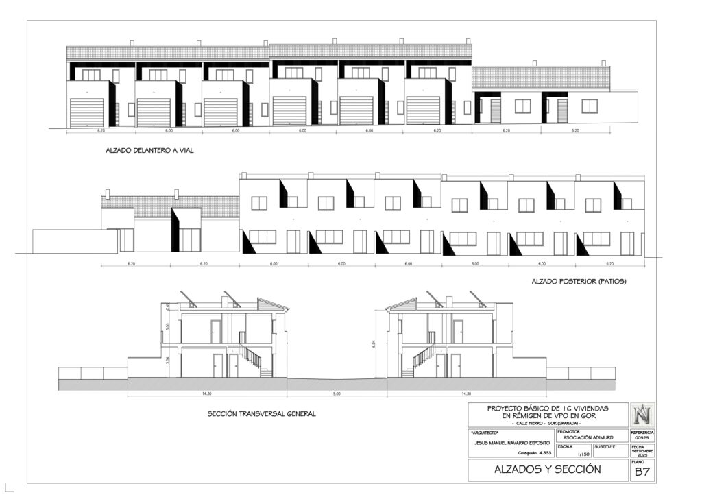
En lo alto del valle, entre la Sierra de Baza y los montes que protegen la Hoya de Guadix, se alza el futuro Residencial Mirador de Gor, una promoción de 16 viviendas protegidas unifamiliares que combina el encanto rural con un diseño moderno, funcional y sostenible.
Este nuevo conjunto residencial forma parte del programa Repuebla Granada, impulsado por ADIMURD, y se ha diseñado para quienes buscan algo más que una vivienda: una vida tranquila, rodeada de naturaleza, con comunidad, silencio y autenticidad.
Residencial Mirador de Gor nace para conservar ese espíritu y ofrecer, al mismo tiempo, una alternativa real para quienes desean establecer su hogar de forma permanente en un entorno rural con identidad, pero sin renunciar a la comodidad ni al diseño contemporáneo.
🌿 Un entorno con alma
Vivir en Gor es volver al origen: al trato cercano, a las calles donde todos se saludan, al ritmo natural de los pueblos con historia.
Desde la Peña del Escarmiento —uno de los yacimientos neandertales más importantes de la zona— hasta las fuentes, eras y caminos que rodean el municipio, todo en Gor respira historia y autenticidad.
Cada casa contará con dos plantas y jardín privado, manteniendo una estética integrada en el entorno con fachadas claras, cubiertas de teja tradicional y líneas limpias. Su disposición permitirá disfrutar de amplias vistas al valle, generando un entorno abierto, luminoso y en armonía con el paisaje.
Aquí la sierra se toca con las manos. Aquí puedes vivir, aquí puedes quedarte.



Esta promoción está pensada para quienes quieren una vida en contacto con la naturaleza, sin renunciar a los servicios esenciales que ofrece el entorno
🔹 Viviendas con parcela privada y distribución funcional
🔹 Diseño rústico integrado en el paisaje
🔹 Conexión por carretera a Guadix en menos de 20 minutos
🔹 Ideal para teletrabajo, familias con niños o personas que buscan un entorno sereno y real
🌄 El futuro empieza aquí
Con Mirador de Gor, el municipio da un paso adelante en su crecimiento ordenado y sostenible, ofreciendo a familias, jóvenes y nuevos residentes la oportunidad de establecerse en un entorno único.
Aquí cada amanecer es distinto, cada tarde tiene luz propia y cada casa será parte de una comunidad que crece desde sus raíces.
✅ Diseñadas para vivir, diseñadas para que te quedes
Los municipios más comprometidos de la comarca ya han dicho sí a una nueva forma de vivir: cooperativas reales, viviendas sin promotores ni especulación, y un modelo de comunidad que recupera la vida de pueblo sin renunciar al confort.
Estas son las caracteristicas de las urbanizaciones protegidas en marcha:
TIPOS DE VIVIENDAS A ELEGIR EN LA URBANIZACIÓN «MIRADOR DE GOR»

Aurora
desde 135.000 €
Raiz
Desde 115.000 €


Solera
Desde 80.000 €
En pocas palabras:
Una vivienda nueva en tu pueblo, en una urbanización cuidada, con 2, 3 o 4 dormitorios, varios baños, salón amplio, terraza, plaza de aparcamiento y zonas comunes, por menos de 400 € al mes.
Precio total aproximado desde 90.000 € hasta 150.000 € dependiendo del tipo de vivienda.
¿Te gustaria vivir las Cumbres de la Vega de Gor?
Registrate ahora como demante de vivienda protegida en el Ayuntamiento de Gor
Sin ningún coste, ni compromiso ni obligación








